拥有三十多年的专业燃烧技术,拥有多套含氯氟,氨,硫化物,氰化物、盐类等的废气废液焚烧&尾气处理装置的良好运行业绩。

工程团队针对各项目提供技术咨询、工艺包、详细设计、制造采购、安装、开车调试等一系列工程总承包服务。

针对各项目提供技术咨询、工艺包、详细设计、制造采购、安装、开车调试等一系列工程总承包服务。

1.主要致力于解决氮氧化物,苯类、非甲烷总烃等污染物的达标排放问题
2.直接氧化法高温燃烧有机废气
3.烟气排放严格,达到环保标准; 废物燃净率率达到99.99%以上。
案例1:

上海石化环保水务部湿式氧化车间VOCs废气处理系统
处理含苯系类,非甲烷烃的多股废气。
焚烧炉为立式底烧负压操作安全有效防止毒气泄漏。

设备:焚烧换热一体炉
工艺特点:挥发性有机物(VOCs)微燃料焚烧系统是利用内置式专利弧形板式换热器对焚烧后烟气和VOCs气体和助燃空气进行换热(最高可预热至600℃以上),炉膛温度大约在750℃~1000℃,烟气余热利用率>95%,最大限度节省燃料甚至不消耗燃料。
工程应用:适用于喷漆、涂装、石油化工、医药等行业的有害废气净化处理;专利设备气气—弧形板片式换热器,传热效率高,压降低;主体设备一体布置,可立式可卧式,撬装供应。
案例2:某石化臭气及VOCs治理项目
工艺路线“焚烧换热一体炉+钠法脱硫+GGH烟气消白“
特点:
1. n股废气组合工况繁多;
2. VOCs废气管线装浓度监测仪,设有稀释风机,确保安全;
3. 废气预热到约500℃,节约60%的燃料消耗;
4. 自主研发专利设备“焚烧换热一体炉”,热效率高,性价比高


案例3:化工厂膨胀气等异味气体治理项目
废气含一氧化碳、甲烷、硫化氢、甲醇等。
负压炉热力焚烧处理6股有异味的原料气,余热用废热锅炉副产蒸汽,最后烟气与动力锅炉烟气合并送氨法脱硫进行净化处理。


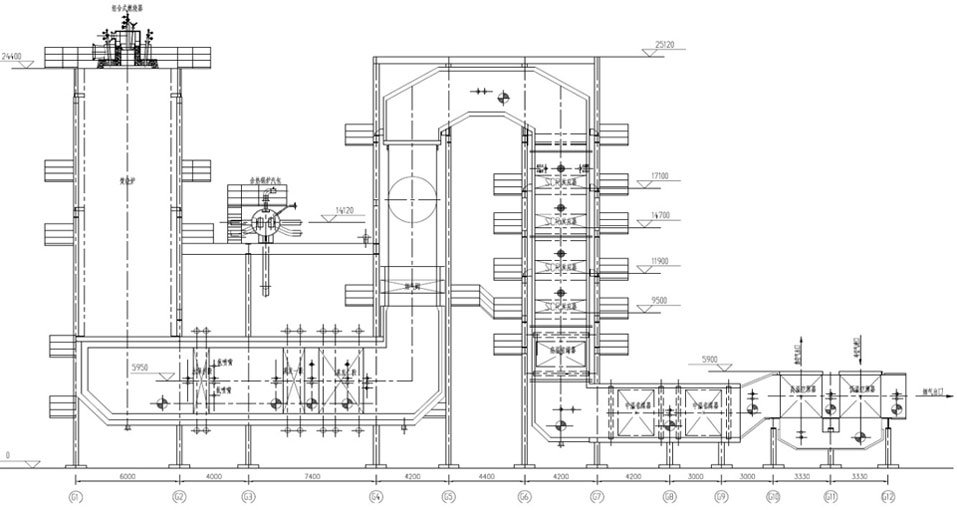
工艺路线“立式顶烧焚烧炉+水管锅炉+急冷塔+碱洗塔+GGH换热器+低温SCR反应器+引风机+烟囱”,立式炉1200℃焚烧氟氯烃类物质,焚烧后生成HF和HCl及少量氯气。高温烟气经喷淋降温后进入洗涤塔,经酸洗、碱洗,除去烟气中HF、HCl和Cl2,达标排放。

案例1:中化蓝天霍尼韦尔新材料有限公司 1.2万吨/年(1,1,1,3,3-五氟丙烷)过程废气焚烧处理装置。
2014年投运,连续稳定运行至今,设备长周期运行,环保达标排放。
1200℃焚烧氟氯烃类物质,经喷淋降温后进入洗涤塔,有效除去烟气中有害物达标排放。

案例2:太仓中化环保化工环保隐患治理项目
2017年进行改造:主要从低氮燃烧器、炉内衬里的优选,不仅解决了废物燃尽率、设备长周期运行,且彻底消除了烟气200-500℃区间的二噁英。
工艺简述:焚烧含99%五氟氯乙烷,炉膛设计>1100℃,原设计高温烟气余热回收产1.7MPa蒸汽。

案例3:某化工公司废气废液焚烧及尾气处理系统
工艺路线“立式顶烧焚烧炉+水管锅炉+急冷塔+碱洗塔+GGH换热器+低温SCR反应器+引风机+烟囱”


对于3股以上的不同来源、不同压力组成的废气,通过增压风机或正压输送缓冲稳压后,分别送至焚烧炉前。
核心燃烧技术:采用分级燃烧,多级配风的理念。
案例1:
云南解化清洁能源开发有限公司膨胀气等异味气体治理项目


废气含一氧化碳、甲烷、硫化氢、甲醇等。负压炉热力焚烧处理6股有异味的原料气,余热用废热锅炉副产蒸汽,最后烟气与动力锅炉烟气合并送氨法脱硫进行净化处理。


系统组成:尾气焚烧单元包括燃烧器和焚烧炉,烟气余热回收单元设置为多级余热回收设备,包括中压蒸汽过热器、蒸汽发生器、低温特殊材料耐酸腐蚀换热设备和空气预热器。
技术特点:通过对焚烧炉的多级配风及尾气分流的设计,可满足排放NOx、有机硫的指标要求,同时对余热回收单元的设备结构及材质进行优化,避免低温酸露点腐蚀,保证设备长周期运行。


重油燃烧:为辅助燃烧室、锅炉、加热炉系统提供热量。
其他应用:对于常减压、加氢、苯乙烯等装置:主燃料为重油,通过专门的雾化喷嘴,提供热源。在无脱硝系统的前提下,NOx可做到100mg/Nm3以下,累计业绩200余套。
硫膏焚烧、制酸装置:针对焦化、钢铁行业硫酸铵、液硫等废液。
性能指标:去除率99.9%,NOx≤250 mg/Nm3。
焚烧炉:低氮燃烧设计,合理分配一、二燃烧室,设折流环和花墙,提高炉膛温度均匀度,延长停留时间。
案例1 :河钢集团有限公司河钢乐亭化工园区EPC总承包制酸单元焚烧项目
1、焚烧系统设计+供货,含废液喷枪;
2、主要成分:硫酸铵、液硫等废液,共6t/h;
3、去除率99.9%,NOx≤250 mg/Nm3。
案例2 :武汉钢铁有限责任公司焦化公司脱硫膏废液焚烧项目
1、焚烧系统设计+供货,含废液喷枪;
2、主要成分:硫酸铵、液硫等废液,共6t/h;
3、去除率99.9%,NOx≤250 mg/Nm3。
多股废气经水封罐和分液罐后分通道、分区域进入燃烧区域,n股废液经增压缓冲后经多支雾化喷枪均匀喷入炉膛。

核心技术:采用燃料分级、空气多级,多喷枪合理分配、对热负荷进行分散布置、燃烧炉膛设置还原和氧化区等低氮燃烧。
工艺路线:1100℃焚烧炉+余热锅炉(含水保护段)+SNCR&SCR联合脱硝+省煤器+空预器+引风机+烟囱
案例3 :某钢铁企业发酵尾气焚烧处理装置

(大型CO焚烧系统)应用行业:催化裂化装置、甲醇制烯烃装置配套CO焚烧炉及余热锅炉
案例4:某钢铁企业发酵尾气焚烧处理装置
(大型CO焚烧系统)应用行业:催化裂化装置、甲醇制烯烃装置配套CO焚烧炉及余热锅炉

含盐废液燃烧过程控制和资源化利用系统
技术难点和现状
1. 高温焚烧,能耗高、资源化利用低
2. 烟气含尘量高,堵塞严重
3. 传统工艺技术,没有针对性,效率低
收益指标
★废弃物定向转化工艺新技术
★节能效益提高30%
★ 副产品收率提高20%.

优点:流场优化-----高温气固速度场
核心部件升级-----多通道外混式雾化燃烧枪组合件



中石化巴陵石化VOC 装置现场